快速入门指南
经典模式:BIM算量模式
简约模式:快速出量
版本更新
关于我们
1、风阀的种类繁多,统计耗时
2、同类风阀规格较多,需要区分规格统计
3、不同类风阀需要单独考虑扣减
1、同类风阀分规格一次性统计
2、自动考虑风管与风阀的扣减关系
3、风阀标高可跟随风管进行联动变化
4、增加指定识别范围的机制,可自定义图纸中风阀的识别范围
5、识别风阀时可复用已有构件
6、无风管时,风阀可以单独计算
1、ribbon界面,建模页签下,触发“风阀提量”功能按钮

2、选择风阀图例,右键确认

3、选择识别范围。支持两种识别方式。一是全图识别方式,可一次识别完图纸中所有相同图例的风阀;二是指定范围识别方式,可应用于自定义指定识别哪些风阀或者相同图例的风阀存在不同的特殊设计要求的相关场景

4、选择完识别范围之后,会弹出预识别结果窗体:
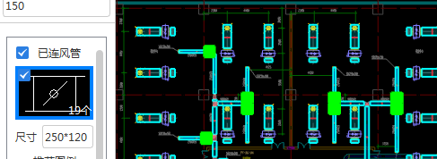
①设置风阀名称及扣减长度(内嵌了防火阀、蝶阀、止回阀、对开多叶调节阀的规范扣减值,并增加了一些常见风阀类型)
②下方窗体中会显示所有找到的相同图例和类似图例,并且按照已连风管和未连风管分组显示。已连风管是指:找到的风阀位置处有风管图元;未连接风管是指:风阀处没有风管图元,未连风管主要解决风阀独立布置在墙上的场景

③单击图例可以进行图元反查,并且图例下方会显示此风阀尺寸(默认按照风管的尺寸显示)

6.所有风阀检查完毕之后,点击确定
7.软件会区分系统,按照风阀类型-规格形式自动建立对应构件;如果原构件列表中存在相应构件,可自动匹配已有构件,并复用相应构件

8.当风管标高发生变化时,风阀标高会自动跟随变化,无需对风阀标高进行二次调整
在线客服
意见反馈
回到顶部