快速入门指南
经典模式:BIM算量模式
简约模式:快速出量
版本更新
关于我们
老版本将按图层、颜色选择功能割裂于图层管理的整体流程之外,用户先选择需要处理的图层类型,再选择处理方式,操作不便且不符合业务逻辑;现将老版本功能整合,把选择图层、颜色等功能融合在图层管理的步骤中。用户不再需要进行多个功能比选操作,优化了操作流程。
1、在”图层管理“窗体下点击”仅显示指定CAD“功能:

2、在右侧绘图区出现类型选择窗体,有按图层选择、按颜色选择、按填充选择、按单图元选择四种选择方式,以”按图层选择“为例:点击”按图层选择“后,选中需要被单独提取的某一图层(图中以门窗为例),选中的图层变成蓝色:

3、单击右键,图中处于同一图层的CAD图元被单独显示:

1、在”图层管理“窗体下点击”隐藏指定CAD“功能:

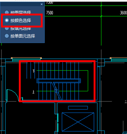
2、在右侧绘图区出现类型选择窗体,有按图层选择、按颜色选择、按填充选择、按单图元选择四种选择方式,以”按颜色选择“为例:点击”按颜色选择“后,选中需要被单独提取的某一颜色(图中以楼梯为例),选中的目标颜色被标记为蓝色:

3、右键确认,刚刚被选中的图层已经被隐藏:

1、在右侧绘图区可以看到轴网和电梯构件属于被隐藏的图元,在”图层管理“窗体下点击”还原已隐藏CAD“功能,:

2、右侧绘图区出现类型选择窗体,有按图层选择、按颜色选择、按填充选择、按单图元选择四种选择方式,以”按单颜色选择“为例:点击”按颜色选择“后,选中需要被还原的某一图层(图中以轴网为例),选中的图层变成蓝色:

3、单击右键,刚刚被选中的图层已经被还原,显示在主体图纸中:

在线客服
意见反馈
回到顶部