快速入门指南
经典模式:BIM算量模式
简约模式:快速出量
版本更新
关于我们
这里,通过以下几个操作步骤,您可以快速熟悉安装算量软件的整体操作流程。
点击桌面快捷图标或是通过单击【开始】→【所有程序】→【广联达建筑工程造价管理整体解决方案】即可。
1、点击软件名称,弹出窗体。

2.点击“新建”按钮

3、点击“创建工程”后,进入到软件操作主界面,进行下一步操作。
1、在工程设置选项卡,点击“工程设置”功能包下的“楼层设置”命令;

2、点击“插入楼层”按钮,进行添加楼层。

广联达BIM安装计量GQI2021软件中,六个专业中识别管道的方法类似,识别设备方法也相同,下面就给排水专业识别管道为例进行演示。
1、在已导入CAD图的情况下,切换到绘制选项卡,选择导航栏“给排水”→“管道(水)”,然后左键点击识别功能包中“选择识别”。

2、移动光标到绘图区DN100管道上,点击左键,此时DN100被选中为蓝色,然后点击右键确认,此时弹出“选择要识别成的构件”对话框,如下图所示。

3、点击“新建”按钮,然后按图纸要求输入相关属性,如下图所示,点击“确认”按钮,此管道生成完毕。

1、点击“汇总计算”功能,弹出“汇总计算”界面,点击“计算”按钮。

2、屏幕弹出“工程量计算完成”的界面;点击“关闭”按钮。

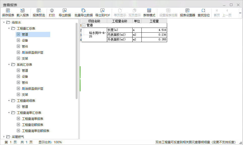
1、在工程量选项卡选择“报表”功能。
2、在左侧导航栏中选择相应的报表,在右侧就会出现报表预览界面。

3、点击“打印”按钮则可打印该张报表。
点击软件窗口上方快速启动栏→“保存”,即可将工程文件保存在本地电脑上,下次可直接打开GQI工程文件,以供查量核量,或继续建模算量。

点击左上角A图标→点击“退出”,即可退出软件。

在线客服
意见反馈
回到顶部