快速入门指南
经典模式:BIM算量模式
简约模式:快速出量
版本更新
关于我们
弥补隔盏类图纸识别的缺失,减少用户的因变通方案造成的重复操作,提高用户的工作效率。
场景一:配管类隔盏识别
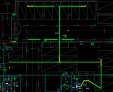
1.识别完照明灯具后,触发隔盏回路功能功能。该功能位于电气专业-电线导管构件-绘制页签—识别功能包中 
2.弹出窗体,选择要识别的隔盏类型,点击确定后在绘图区选择要识别的CAD线及代表隔盏的标识,支持多趟回路的选择。选择后CAD线依旧变为蓝色选中。


3.若选错回路,在此点选将取消所选回路联通被取消。


4.检查无误后,右键确认,即弹出回路信息窗体

5.所选CAD线上所有标识均被查找到,并在窗体内显示出来。双击隔盏编号可以反查对应回路,回路中隔盏灯具亮黄色显示,路线成亮绿色显示。


6.检查无误可以直接选择构件进行生成。若是有误,可以直接选中要更改的CAD线进行修改路径。


7.选择完构件后,可以修改回路颜色,方便我们生成时按窗体颜色进行生成。


8.点击确定后,生成线缆,可以看到线缆根据窗体内颜色并列排布。不同回路的管线在对应灯具位置生成立管。
1.依旧触发隔盏回路功能,选择灯槽类隔盏点击确定。
2.选择桥架任意位置及代表隔盏灯具的标识,右键确认

3.弹出窗体,将隔盏回路全部提取进来

4.双击隔盏编号支持反查回路,在灯槽类隔盏的反查中不光灯具及回路亮显还增加了线缆路径的走向,可以看到每趟回路换线位置


5.检查无误后添加构件,支持选择配管类构件。同时按配管类构件反建同名称的电线或电缆构件。并且生成立管按住配管进行向下引线。生成线缆后可以根据颜色判断线缆的走向。


1.南方地区的地下车库常见隔盏类图纸,多条回路由一条CAD小控制,隔一控一,在确保照明的情况下易维护检修;
2.对于较大的建筑物地下室常见灯槽类隔盏,不区分地区性质。主要是节省造价成本,同时达到隔一控一方便检修的目的。
在线客服
意见反馈
回到顶部