用户在实际做工程的过程中,习惯的操作流程为添加图纸-设置比例-分割图纸-图纸定位,而之前的老版本将这个流程拆解到多个窗体进行实现,不符合用户的使用习惯和操作逻辑。现将该操作流程整合在“图纸预处理”页签下,并对步骤操作进行了优化,方便用户完成图纸预处理,使用起来更加流畅。
1)点击”工程设置“页签下的”添加图纸“功能,弹出添加图纸窗体:

2)选择需要导入的图纸,在右侧窗体可以看到该图纸的预览图和图纸名称,双击预览图区域可放大预览图进行查看,预览区域下方可勾选是否进行导入:

3)针对PDF格式的图纸,可在下方直接选择PDF格式进行导入:

1)点击”工程设置“页签下的”设置比例“功能,根据需要修改的图纸数量分别选择”局部设置“或”整图设置“

2)针对单张图纸比例错误的情况,选用“设置比例-局部设置”功能,对图纸进行比例的调整:

1、单击“局部设置”:框选需要修改比例的平面图,选中的图纸变成蓝色:

2、右键确认,进入选两点距离步骤;选中某两点间距离后,右键确认,弹出尺寸输入窗体,测量尺寸和图纸标注尺寸不符:

3、将量取的距离更改为图纸标注的实际距离,即将2000更改为图纸上标注的3500;点击确认后,选中的图纸恢复到正常比例:

3)针对整张图纸或多张图纸比例错误的问题,选用“设置比例-整图设置”功能:

1、 触发“整图设置”功能后,直接进入量取两点间距离步骤,选择图纸上任意两点进行距离量取,右键确认后,弹出尺寸输入窗体:

2、将量取的距离更改为图纸标注的实际距离,即将2000更改为图纸上标注的3000;点击确认后,图纸上的所有平面图全部恢复到正常比例:

1、添加图纸后,在“工程设置”页签下,“自动分割”功能按钮变为亮显,触发该按钮:

2、首次触发自动分割,弹窗提示“请确认分割图纸的模式”,选择目标模式后点击“确认”,分割后图纸将按照选择的模式以楼层编号或分层的模式放置。
a.分层模式:绘图区仅显示同一楼层同一分层图纸;
b.楼层编号模式:绘图区显示同一楼层全部图纸。
首次触发出现该弹窗,二次触发之后将不再出现。

3、选择分割模式:
a.当工程图纸中含有大量设计说明、系统图等这类不必分割算量的图纸时,用户可通过“局部分割”拉框选中需要进行分割的图纸进行分割。鼠标点选“局部分割”模式,手动框选图纸范围,右键确定,开始自动分割:

b.当工程图纸中大多数为平面图时,用户可通过“整图分割”一键自动分割全部工程图纸。鼠标点选“整图分割”模式,直接开始自动分割:

4、分割完成后,弹出“自动分割”窗体:
a.“自动分割”窗体会自动提取图纸名称,并根据图名解析出对应的楼层和专业系统。如图名为“一层给排水平面图”的图纸,可自动解析”楼层“为”首层“;”专业系统“为给水系统,排水系统”。

b.查看对应绘图区图纸:
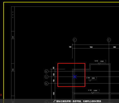
1.单击列表中的图纸名称单元格时,对应图纸在绘图区中以闪烁的红框提示,可以查看图纸所在的位置。(左图)
2.双击列表中的图纸名称单元格时,对应图纸在绘图区居中放大显示,并以闪烁的红框提示。可以查看图纸细节,校核分割及提取图名是否正确(右图)

c.当发现列表中有图纸提取错误时,可进行手动调整:
1.当发现图名错误时,可在绘图区中找到对应图纸,点击图纸中正确的文字,即可将该文字自动提取到列表中进行更正。支持ctrl键多个单元格连选,一次性提取多项内容。

2.当需要修改楼层时,点击对应单元格,触发三点按钮 ,弹出“标记信息”窗体,可选择正确楼层。同时,如须修改该图纸的专业系统时,也可直接从该窗体中切换到“专业系统"列表,选择正确专业系统。

3.当“标记信息”窗体列表中的图纸匹配不上对应楼层时,这是因为图纸只能匹配”楼层设置“中已存在的楼层。因此,可点击”楼层设置“按钮,弹出”楼层设置“窗体,可在“楼层设置”中添加楼层及工程项,触发关闭按钮后,自动刷新匹配。

d.当所框选的图纸未涵盖全部算量图纸时,可在”自动分割“窗体列表中,点击 ”补充分割“按钮,对未框选的图纸进行补框选,右键确认后进行自动分割,并以闪烁的红框提示,加入到现有“自动分割”窗体列表中。

e.当发现”自动分割“窗体列表中存在无关图纸,如系统图时,可右键”删除“或触发键盘delete键,将其删除。

5、点击”确定“,将选中图纸加入到”图纸管理“窗体列表中,完成自动分割。

1、点击”手动分割“,将框选需要分割的图纸,右键确认,弹出”手动分割“窗体。”手动分割“窗体会自动提取图纸名称,并根据图名解析出对应的楼层和专业系统。分层模式下会自动分配分层,同一专业系统对应同一分层。

2、当需要修改楼层时,点击楼层选择栏,触发三点按钮 ,弹出“标记信息”窗体,可选择正确楼层。同时,如须修改该图纸的专业系统时,也可直接从该窗体中切换到“专业系统"列表,选择正确专业系统。

3、当需要修改专业系统时,点击专业系统栏,触发三点按钮 ,弹出“标记信息”窗体,可选择正确专业系统。

4、自动分配的分层不满足需要时,可下拉选择调整。

1、图纸已分割完成后,触发“自动定位”按钮。

2、弹出选择单项窗体:
a.当工程中仅一个单项时,直接进行自动定位;
b.当工程中存在多个工程项时,弹出“选择定位单项”窗体,选择单项触发“确定”后,自动对此单项进行定位.
c.窗体中:当工程项处于未定位状态时,名称前图标灰显;当工程项处于已定位状态时,名称前图标绿显。

3、定位完成:
a.所有图纸定位成功,可以看到每张图纸内新增定位点。多单项时,不同单项定位点以不同颜色区分。

b.当部分图纸未定位成功时,弹窗提示定位失败,并支持切换到“手动定位”。“手动定位”见后续说明。

1、在“工程设置”页签下,点击”手动定位“按钮(图1),默认打开交点功能,可通过拾取两根线形成交点的形式精确选择点。

2、拾取图中任意两根非平行线,自动形成交点作为定位点。

1、在”工程设置”页签下,点击”变更定位“按钮。

2、在绘图区中点选需要变更的定位点,选中后定位点图标变为蓝色。

3、指定期望变更到的新位置,同样使用交点的形式选择位置点。

4、指定完新位置后,同一楼层的所有定位点都移动到相同的位置。发生变动的定位点红色闪烁提示。
