快速入门指南
经典模式:BIM算量模式
简约模式:快速出量
版本更新
关于我们
1.土建模型的导入,可以在施工前期提前规避土建与安装管线的碰撞及时进行管线的避让。
2.根据土建模型计算套管剔槽等图元工程量
3.施工过程中土建局部变更导致安装拆改,可根据土建实际情况精准算量。
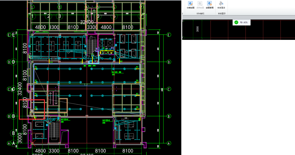
1.触发导入土建模型功能,弹出选择工程文件窗体,选择要导入的土建模型参照文件(该文件需要在GTJ下导出gshmd文件)

2.点击打开,会弹出设置构件楼层的窗体,可以选择要显示的构件类型及属性。

3.点击下一步可以选择楼层对应关系。支持多单项工程调整对应。光标定位在每一行均可以通过勾选修改对应显示土建楼层。

4.设置定位点,默认按照土建的00点对其安装00点位置,若需要调整可以手动定位修改。检查无误后点击确定。当为自动定位时,软件自动00点对其,手动定位时,需要手动确定定位点。手动定位时光标会带着土建模型一并移动到指定位置。

5.导入完毕,此时导航栏自动增加建筑构件这个专业,作为与建筑结构的区分。该构件下只能对导入的建筑构件进行整体的模型调整、重定位、查看属性、删除模型的操作。

6.模型管理功能可以对导入的土建模型二次调整,在已显示的土建模型下进行图元显示的调整。调整方式同导入后的调整设置。
7.重定位功能支持对已导入的模型二次定位,确保土建模型位置与安装模型精准定位操作。
8.查看属性,触发命令下安装需要的土建模型均可看到它自身的属性,方便用户绘制安装模型时精准确定土建模型对安装图元的影响。
9.删除模型,触发命令后将自动删除当前导入的模型。若已存在模型下再次触发导入土建模型功能,也同时会删除当前模型。
10.此时与土建模型想结合的安装模型将自动检查,包括剔槽自动生成、套管根据墙体楼板类型自动生成,并且支持与平齐板顶的操作。
11.针对土建模型与安装模型的碰撞检查增加了避让建筑的优化。触发碰撞检查后选择碰撞设置功能,仅勾选建筑构件或建筑结构项。

11.1.点击避让建筑后,管线与梁及柱进行避让操作。

在线客服
意见反馈
回到顶部