快速入门指南
经典模式:BIM算量模式
简约模式:快速出量
版本更新
关于我们
1、风阀的种类繁多,统计耗时
2、同类风阀规格较多,需要区分规格统计
3、不同类风阀需要单独考虑扣减
1、同类风阀分规格一次性统计
2、自动考虑扣减关系
3、无风管时,风阀可以单独计算
1、ribbon界面,建模页签下,触发“风阀提量”功能按钮

2、选择风阀图例

3、右键弹出如下所示窗体

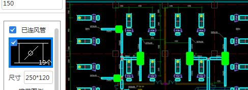
①设置风阀名称及扣减长度(内嵌了防火阀、蝶阀、止回阀、对开多叶调节阀的规范扣减值)
②下方窗体中会显示找到的相同图例和类似图例,并且区分显示已连风管和未连风管。已连风管是指:找到的风阀位置处有风管图元;未连接风管是指:风阀处没有风管图元,未连风管主要解决风阀独立布置在墙上的场景
③单击图例可以进行图元反查,并且图例下方显示此风阀尺寸(默认按照风管的尺寸显示)

④检查无误后,勾选要生成的图例

4、点击确定按钮,生成风阀图元

在线客服
意见反馈
回到顶部